Мы начинаем с тех данных, которые у вас уже есть:
На основании этих данных инженер делает предварительный расчёт и предлагает оптимальную модель
Мешки меняются по мере их заполнения осадком — строгого календарного интервала нет.
Частота замены зависит от нескольких факторов:
Частота замены зависит от объёма осадка, концентрации взвесей, состава загрязнений и режима работы объекта.
В среднем один комплект служит от нескольких недель до нескольких месяцев. Мешки стандартные и всегда доступны, поэтому эксплуатация остаётся простой и предсказуемой.
Да. ОНИКС применяется на хозбытовых очистных, ливневых системах и на производственных стоках разных отраслей. Главное — корректный подбор под конкретный состав и объём осадка. Если сток нестандартный, мы анализируем условия объекта и даём рекомендации по оптимальной схеме работы.
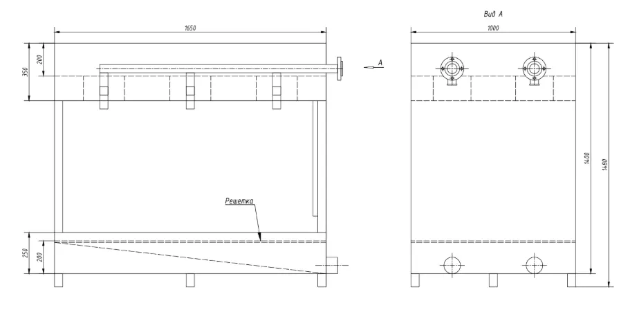
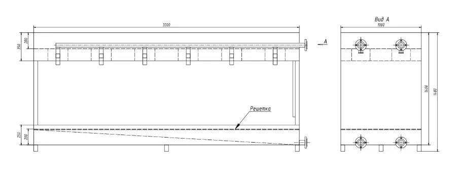
Мы предоставляем полный комплект для включения оборудования в проект: чертежи, схемы подключения, технические характеристики, рекомендации по установке и спецификации. Этого достаточно для быстрой закладки ОНИКС в проектную документацию.
Поставка выполняется по всей России. После подбора модели мы формируем КП с габаритами и весом, рассчитываем варианты доставки и указываем сроки и стоимость логистики. Отгрузка возможна до терминала ТК или напрямую на объект. При необходимости помогаем с монтажом и вводом в эксплуатацию.
Да. Мы предоставляем реальные фотографии производства и оборудования, а также видео работы установок на действующих объектах. По запросу подберём примеры внедрений в условиях, близких к вашим, чтобы вы заранее понимали ожидаемый результат.
Остались вопросы?
Задайте их нашему специалисту
Наши контакты:
Бесплатно по России:
Телефон:
Почта для заявок:
Почта отдела бухгалтерии:
График работы офиса и склада:
Понедельник- Пятница:
с 9:00 до 18:00 без обеда
Суббота-Воскресенье:
с 9:00 до 20:00 Консультация по телефону
В выходные дни прием в офисе по предварительному согласованию
Адреса офисов и складов:
Центральный офис:
г.Москва, ул. Рябиновая, дом 32, этаж 3, офис 60
Склад №1:
МО, 9 км от МКАД по каширскому шоссе, д.Горки, Ленинский район (полипропиленовые емкости)
Склад №2:
г.Санкт-Петербург (стеклопластиковые емкости)
Наши контакты:
Бесплатно по России:
Телефон:
Почта для заявок:
Почта отдела бухгалтерии:
График работы офиса и склада:
Понедельник- Пятница:
с 9:00 до 18:00 без обеда
Суббота-Воскресенье:
с 9:00 до 20:00 Консультация по телефону
В выходные дни прием в офисе по предварительному согласованию
Адреса офисов и складов:
Центральный офис:
г.Москва, ул. Рябиновая, дом 32, этаж 3, офис 60
Склад №1:
МО, 9 км от МКАД по каширскому шоссе, д.Горки, Ленинский район (полипропиленовые емкости)
Склад №2:
г.Санкт-Петербург (стеклопластиковые емкости)
Информация на сайте не является публичной офертой, все условия можно узнать по телефону